Sarud – tervrajzok
Tervrajzok
Sarudon az egri egyházmegye egyházi centrumot szeretne kialakítani, ahol ifjúsági, lelkigyakorlatos, szabadidő hasznos eltöltésére, nyári táborozásra, hátrányos helyzetű tanulók segítésére lenne lehetőség. Ezt az egyházmegye katolikus iskoláinak tanulói, egyházközségek ifjúsági csoportjai, minisztráns csoportok vehetnék igénybe.
Sarud a Tisza mellett fekszik, így vízitúrák szervezésére, strandolásra, a szabadidő hasznos eltöltésére is lenne lehetőség. A tervezett centrum a régi plébániaépület felújításával, és új szállás épületek és vizesblokk kialakításával lesz teljes.
Első lépésként a volt plébániaépület felújítására kerül sor, majd a program megvalósítása során pályázati pénzekből szeretnénk az új, modern szállásépületet, sportpályát megvalósítani.
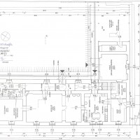
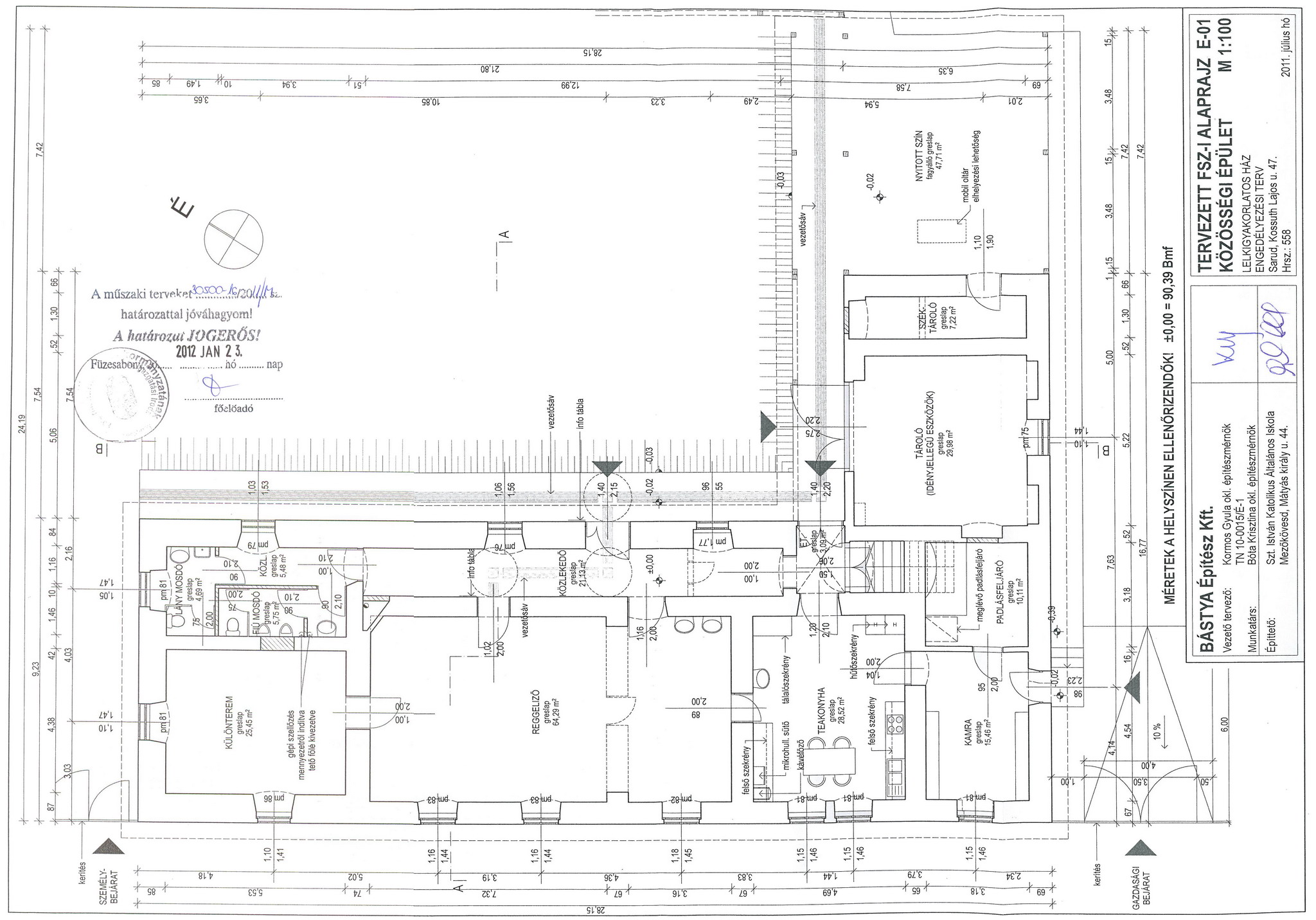
Az egyházi centrum épületeinek tervrajzai:














